header-contact.jpg

Familiewoning '26

Ontdek de Familiewoning '26 van Casa Pacto

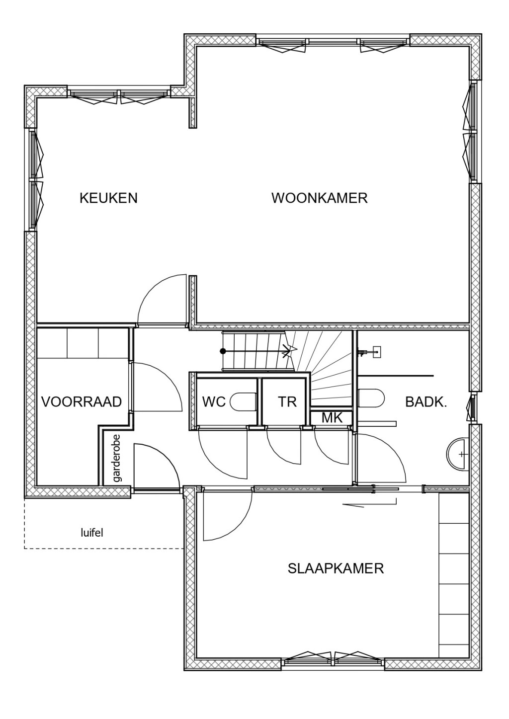
De Familiewoning '26 is het ultieme antwoord op de wens naar een volwaardige nieuwbouwwoning op eigen erf. Dit model behoudt de sfeer en functionaliteit van een traditioneel huis, maar met de ongekende efficiëntie en snelheid van ons modulaire bouwsysteem. De royale aanbouw creëert een lichte en ruime leefkeuken, waardoor dit huis het sociale en culinaire hart van de familie kan zijn.

Dankzij de doordachte indeling en het schuine dak voelt de 100m² verrassend ruim aan. De focus op een uitgebreide keukenruimte maakt dit model de perfecte keuze voor zowel starters die een comfortabele, vaste basis zoeken, als voor familieleden die waarde hechten aan gezamenlijke leefruimtes.

moderne-woonkamer-aanpassing.png
header-contact.jpg
20251216_1337_gestileerde-interieur-aanpassing_remix_01kckjjc26f9tsa5f92wbsjg1n-(1).png
20251216_1254_moderne-open-woonruimte_remix_01kckg4b7hf10txw49p9tza4x1.png
20251216_1301_moderne-woonkamer-details_remix_01kckgff2yeq9bffp9tsjjerme-(1).png

Onze specialiteit

Ons unieke concept is geboren vanuit de techniek. Als installateurs ontwierpen we de centrale technische unit, het kloppende hart van uw woning. Dit garandeert maximale efficiëntie en kwaliteit, met minimale bouwtijd.

Technisch doordacht

De Familiewoningen zijn ontworpen vanuit de techniek met ruime ervaring in de bouw- en installatiebranche.

Gegarandeerde levertijd

Uw Familiewoning staat dankzij ons doordachte bouwsysteem binnen 10 werkweken op uw erf.

Permanente bouw

Voldoet aan alle nieuwbouweisen voor permanente bouw (Bbl/bouwbesluit en WKB). Geschikt voor langdurig gebruik (50+ jaar).

Duurzaam

Wij bieden de hoogwaardige isolatiekwaliteit van nieuwbouw, A+++(+) energielabel en tot 96% recyclebare materialen.

De woning in het kort

De Familiewoning '26 is een complete, sleutelklare woning met Energielabel A+++(+). De constructie overtreft de BBL-normen en is gebouwd rond onze technische kern. Het is een praktische woning met een schuin dak, ideaal voor plaatsing op eigen erf, inclusief transport en garanties. De uitgebreide keukenruimte van de Familiewoning 26 is essentieel voor ultiem wooncomfort.

Ontworpen vanuit techniek.

Nul op de meter woning mogelijk.

A+++(+) energielabel.

96% recyclebaar materiaal.

Beschikbare materialen

U bepaalt zelf de uitstraling van uw Familiewoning. De buitenmuren zijn leverbaar in drie kwalitatieve afwerkingen: tijdloos metselwerk (steen), modern stucwerk of sfeervol hout (al dan niet zwart geverfd). Kies de optie die perfect past bij uw smaak.

hout.jpg

Meest gekozen

Hout

De luchtige, warme uitstraling van hout past perfect bij het imago van de Familiewoning en is daarom ook ons meest gekozen afwerking.

Meest gekozen

Hout
stuc.jpg

Strak en egaal

Stuc

Een verzorgde, moderne uitstraling. De afwerking van stuc is herkenbaar in een bebouwde omgeving en oogt op rust.

Strak en egaal

Stuc
steen.jpg

Robuust en traditioneel

Steen

Het tijdloze karakter van deze afwerking geeft een hoogwaardig gevoel, vaak passend bij de hoofdwoning en een kenmerk van vertrouwdheid.

Robuust en traditioneel

Steen

Compact, maar met veel comfort

Door de slimme plattegrond en de architectuur met een schuin dak voelt de woning van 100 vierkante meter van binnen verrassend ruim en volwaardig aan.

Gebruikskwaliteit
Energieprestatie en duurzaamheid
Technisch en esthetisch
Proces
Prijs
casa-pacto-plattegrond-familiewoning-26.jpg

Over Familiewoningen van Casa Pacto

De term Familiewoning op erf is meer dan alleen een product. Het is een oplossing voor de huidige maatschappelijke uitdagingen. Veel mensen zoeken naar een zelfstandige familiewoning die snel en betaalbaar is, zonder concessies te doen aan comfort of duurzaamheid. Onze woningen, perfect voor wonen bij familie op het erf, voorzien in deze groeiende behoefte.

Wij distantiëren ons duidelijk van de traditionele tiny houses. De Casa Pacto woning is volwaardig en compleet, waardoor de bewoners een echt thuis ervaren, niet een tijdelijke oplossing. Of u nu zoekt naar een mantelzorgwoning voor uw ouders (Generatiewonen), of een woonoplossing voor starters (Ouders van Starters): onze modulaire aanpak garandeert dat u een sleutelklare woning ontvangt, ontworpen om jarenlang comfortabel en dichtbij familie te wonen. Onze focus op technische kwaliteit maakt ons de meest efficiënte en duurzame optie in de markt.

header-contact.jpg

Ontdek de brochure.

Bent u klaar om de volgende stap te zetten? Bekijk onze brochure met alle informatie over onze Familiewoningen. Download de brochure of ontvang de gedrukte versie in huis.

v4_casapacto_brochure_mockup.png

Ontdek onze nieuwe brochure!

Bent u klaar om de volgende stap te zetten? Bekijk onze brochure met alle informatie over onze Familiewoningen.

Download onze brochure