header-contact.jpg

Familiewoning AM

Ontdek de Familiewoning AM van Casa Pacto

De Familiewoning AM is het resultaat van optimalisatie met het oog op de zorg. Dit 'Aangepaste Model' is specifiek ontworpen om de leefruimte in de woonkamer en te maximaliseren, een cruciale factor bij mantelzorg. Het biedt de bewoner alle ruimte die nodig is.

Hoewel de keuken compact en efficiënt is gehouden, doet dit geen afbreuk aan de volwaardige uitstraling en de A+++(+) kwaliteit. Dit model is de ideale, snelle en duurzame oplossing voor gezinsleden die dichtbij hun dierbaren willen blijven wonen met alle voorzieningen gelijkvloers.

moderne-woonkamer-aanpassing.png
header-contact.jpg
20251216_1337_gestileerde-interieur-aanpassing_remix_01kckjjc26f9tsa5f92wbsjg1n-(1).png
20251216_1254_moderne-open-woonruimte_remix_01kckg4b7hf10txw49p9tza4x1.png
20251216_1301_moderne-woonkamer-details_remix_01kckgff2yeq9bffp9tsjjerme-(1).png

Onze specialiteit

Ons unieke concept is geboren vanuit de techniek. Als installateurs ontwierpen we de centrale technische unit, het kloppende hart van uw woning. Dit garandeert maximale efficiëntie en kwaliteit, met minimale bouwtijd.

Technisch doordacht

De Familiewoningen zijn ontworpen vanuit de techniek met ruime ervaring in de bouw- en installatiebranche.

Gegarandeerde levertijd

Uw Familiewoning staat dankzij ons doordachte bouwsysteem binnen 10 werkweken op uw erf.

Permanente bouw

Voldoet aan alle nieuwbouweisen voor permanente bouw (Bbl/bouwbesluit en WKB). Geschikt voor langdurig gebruik (50+ jaar).

Duurzaam

Wij bieden de hoogwaardige isolatiekwaliteit van nieuwbouw, A+++(+) energielabel en tot 96% recyclebare materialen.

De woning in het kort

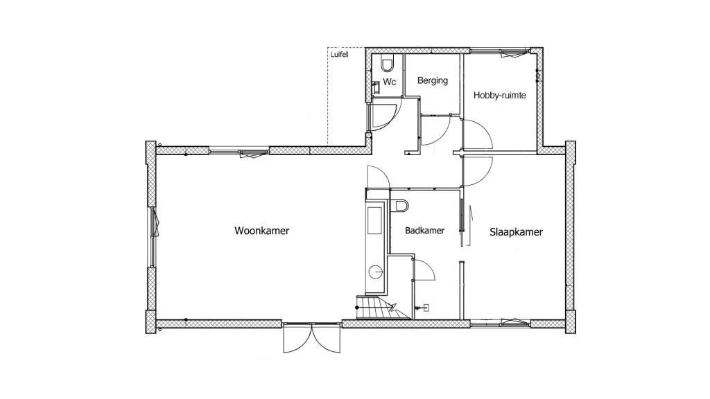
De Familiewoning AM van Casa Pacto is een complete, sleutelklare woning met Energielabel A+++(+). De constructie overtreft de BBL-normen en is gebouwd rond onze technische kern. Het is een nultreden woning met een schuin dak, ideaal voor plaatsing op eigen erf, inclusief transport en garanties. Met de nadruk op woon- en slaapkamer, ligt de focus van de Familiewoning AM op het dagelijkse woongemak.

Ontworpen vanuit techniek.

Nul op de meter woning mogelijk.

A+++(+) energielabel.

96% recyclebaar materiaal.

Beschikbare materialen

U bepaalt zelf de uitstraling van uw Familiewoning. De buitenmuren zijn leverbaar in drie kwalitatieve afwerkingen: tijdloos metselwerk (steen), modern stucwerk of sfeervol hout (al dan niet zwart geverfd). Kies de optie die perfect past bij uw smaak.

hout.jpg

Meest gekozen

Hout

De luchtige, warme uitstraling van hout past perfect bij het imago van de Familiewoning en is daarom ook ons meest gekozen afwerking.

Meest gekozen

Hout
stuc.jpg

Strak en egaal

Stuc

Een verzorgde, moderne uitstraling. De afwerking van stuc is herkenbaar in een bebouwde omgeving en oogt op rust.

Strak en egaal

Stuc
steen.jpg

Robuust en traditioneel

Steen

Het tijdloze karakter van deze afwerking geeft een hoogwaardig gevoel, vaak passend bij de hoofdwoning en een kenmerk van vertrouwdheid.

Robuust en traditioneel

Steen

Compact, maar met veel comfort

Door de slimme plattegrond en de architectuur met een schuin dak voelt de woning van 100 vierkante meter van binnen verrassend ruim en volwaardig aan.

Gebruikskwaliteit
Energieprestatie en duurzaamheid
Technisch en esthetisch
Proces
Prijs
casa-pacto-plattegrond-familiewoning-am.jpg

Over Familiewoningen van Casa Pacto

De term Familiewoning op erf is meer dan alleen een product. Het is een oplossing voor de huidige maatschappelijke uitdagingen. Veel mensen zoeken naar een zelfstandige familiewoning die snel en betaalbaar is, zonder concessies te doen aan comfort of duurzaamheid. Onze woningen, perfect voor wonen bij familie op het erf, voorzien in deze groeiende behoefte.

Wij distantiëren ons duidelijk van de traditionele tiny houses. De Casa Pacto woning is volwaardig en compleet, waardoor de bewoners een echt thuis ervaren, niet een tijdelijke oplossing. Of u nu zoekt naar een mantelzorgwoning voor uw ouders (Generatiewonen), of een woonoplossing voor starters (Ouders van Starters): onze modulaire aanpak garandeert dat u een sleutelklare woning ontvangt, ontworpen om jarenlang comfortabel en dichtbij familie te wonen. Onze focus op technische kwaliteit maakt ons de meest efficiënte en duurzame optie in de markt.

header-contact.jpg

Ontdek de
mogelijkheden.

Bent u klaar om de volgende stap te zetten? Bekijk onze brochure met alle informatie over onze Familiewoningen.

v4_casapacto_brochure_mockup.png

Ontdek onze nieuwe brochure!

Bent u klaar om de volgende stap te zetten? Bekijk onze brochure met alle informatie over onze Familiewoningen.

Download onze brochure